Piso en venta en Andalucía - Málaga de 2 habitaciones Andalucía, Málaga

570.000 €

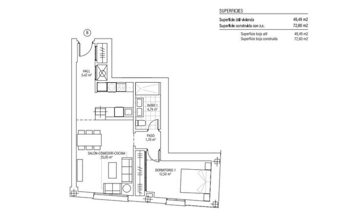
  • 78 m²
  • 2 habitaciones

Información y detalles

Estado En venta
Tipo de vivienda Piso
Precio 570.000 €
Area 78 m²
Precio por m² 7.307,69 €/m²
Habitaciones 2
País España
Municipio Estepona
Dirección Andalucía, Málaga

Detalles de la vivienda

, Estepona, Costa del Sol. 2 Dormitorios, 2 Baños, Construidos 89 m², Terraza 10 m². Posición: Cerca de Tiendas. Orientación: Sur. Estado: Excelente. Piscina: Comunitaria. Climatización: Aire Acond...

Calculadora de Hipoteca

%