Piso en venta en Cataluña - Barcelona de 5 habitaciones Cataluña, Barcelona

2.100.000 €

  • 190 m²
  • 5 habitaciones

Información y detalles

Estado En venta
Tipo de vivienda Piso
Precio 2.100.000 €
Area 190 m²
Precio por m² 11.052,63 €/m²
Habitaciones 5
País España
Provincia Barcelona
Municipio Barcelona
Dirección Cataluña, Barcelona

Características

  • 2° planta
  • A reformar
  • Terraza

Estaciones cercanas

Detalles de la vivienda

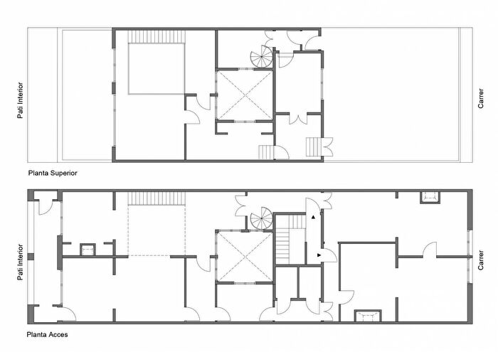
Estamos ante un espacio singular, consta de dos entradas con una superficie de 177 m2 más terraza de 8,30 m2, más planta altillo de 79 m2 y dos terrazas una de 22,55 m2 y la segunda de 59,80 m2 . E...

Calculadora de Hipoteca

%